Back to ACM index

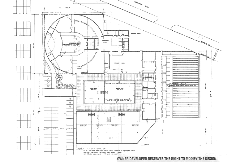
Jackie Lee's Mall

Akron, Ohio

"Jackie Lee's Mall will feature a 40 lane bowling emporium and a 25,000 sq. ft. new night club, and banquet facility. The remaining 60,0000 sq. ft. of space will be available for retail boutiques and service-related businesses."

This was a project for Marko's main client of the early 80's, Vince Tisci, the contractor for the library. Marko designed everything down to the place settings in the restaurant. He also renovated Tisci's offices and designed a country-western bar for him. The recession finally took it's toll on the developer. The mall continued through the 90's with concerts by rock and roll bands. Today the mall has been converted into Coventry High School.

(c) ACM (c) ACM (c) ACM (c) ACM (c) ACM (c) ACM (c) ACM (c) ACM (c) ACM (c) ACM